Lwówek Śląski
Nasza Gmina
Urząd Gminy
Dla mieszkańca
Kamery na żywo
Gospodarka odpadami
Gospodarka odpadami
Harmonogram odbierania odpadów
Zasady segregacji odpadów
Deklaracje, oświadczenia
PSZOK - Punkt Selektywnej Zbiórki Odpadów Komunalnych
Sanikom
Uchwały
Kto odbiera odpady komunalne
Osiągnięte poziomy recyklingu
Analiza stanu gospodarki odpadami
Zużyty sprzęt elektryczny i elektroniczny
Co zrobić z zużytym sprzętem elektrycznym i elektronicznym
Miejsce zagospodarowania odpadów
Rejestr działalności regulowanej w zakresie odbierania odpadów komunalnych od właścicieli nieruchomości na terenie gminy i miasta Lwówek Śląski
Adresy punktów zbierania / zakładów przetwarzania odpadów folii, sznurka oraz opon powstających w gospodarstwach rolnych
Ewidencja udzielonych zezwoleń na prowadzenie opróżniania zbiorników bezodpływowych
Komunikaty
Turystyka
LWÓWECKIE LATO AGATOWE
Oświata
Filmy
Kontakt
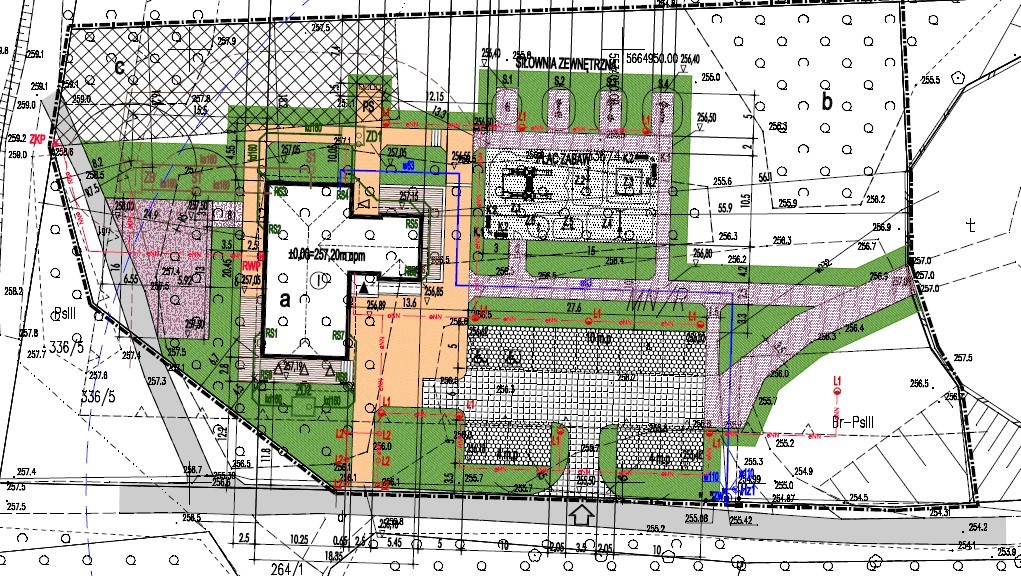
Zadanie dofinansowane z Rządowego Funduszu Polski Ład pn. "Budowa świetlicy wiejskiej wraz z miejscem na filię biblioteki w m. Niwnice".
Celem gminnego przedsięwzięcia jest budowa budynku świetlicy wiejskiej wraz
z miejscem na filię biblioteki.
Obiekt powstanie w sąsiedztwie Kościoła pw. św. Jadwigi w Niwnicach. Będzie budynkiem jednokondygnacyjnym o kubaturze 1420,00 m3, niepodpiwniczonym, zadaszonym dachem stromym, symetrycznym o kącie nachylenia 35º, wyposażonym m.in. w instalacje elektryczną, fotowoltaiczną, wod-kan. i cieplną zasilaną pompą ciepła. Oprócz budowy świetlicy projekt przewiduje zagospodarowanie terenu,
tj. budowę dojazdu i miejsc parkingowych, budowę siłowni zewnętrznej i placu zabaw.
Budynek użyteczności publicznej będzie składał się z: pomieszczenia przeznaczonego na świetlicę, bibliotekę, kuchnię, szatnię, WC, korytarz, pomieszczenie porządkowe, pomieszczenie socjalne, pomieszczenie techniczne urządzeń fotowoltaiki oraz kotłownię. Powierzchnia zabudowy wyniesie 299,20 m2, powierzchnia użytkowa 224,54 m2.
Prace w związane z budową, wykonywane będą przez firmę budowlaną PS DACH Przemysław Skoczek z siedzibą w Dłużcu.
Budowa będzie realizowana w czasie 10 miesięcy.
Cała inwestycja ma wartość 3 264 420,00 zł przy dofinansowaniu z Rządowego Funduszu Polski Ład - Programu Inwestycji Strategicznych w wysokości
1 890 500,00 zł![5.png [354x189]](https://cms-v1-files.idcom-jst.pl/sites/1029/wiadomosci/221260/fotos/orign/5.png)
![6.png [357x187]](https://cms-v1-files.idcom-jst.pl/sites/1029/wiadomosci/221260/fotos/orign/6.png)